Prodej rodinného domu, 300 m2
Náměšť nad Oslavou, Bří Čapků
15 990 000 Kč
V Náměšti nad Oslavou nabízíme k prodeji rodinný dům o užitné ploše 300 m2, se dvěma terasami o celkové ploše 28 m2 a zahradou o výměře 634 m2. Díky svému prostoru, dispozičnímu řešení a variabilitě využití nabízí dům pohodlné vícegenerační bydlení, kombinaci bydlení a podnikání nebo vytvoření několika samostatných obytných zón.
Nemovitost je ve velmi dobrém technickém stavu a díky kombinaci vícero zdrojů vytápění a energie umožňuje efektivní a dlouhodobě udržitelný provoz.
Dispozice a řešení domu
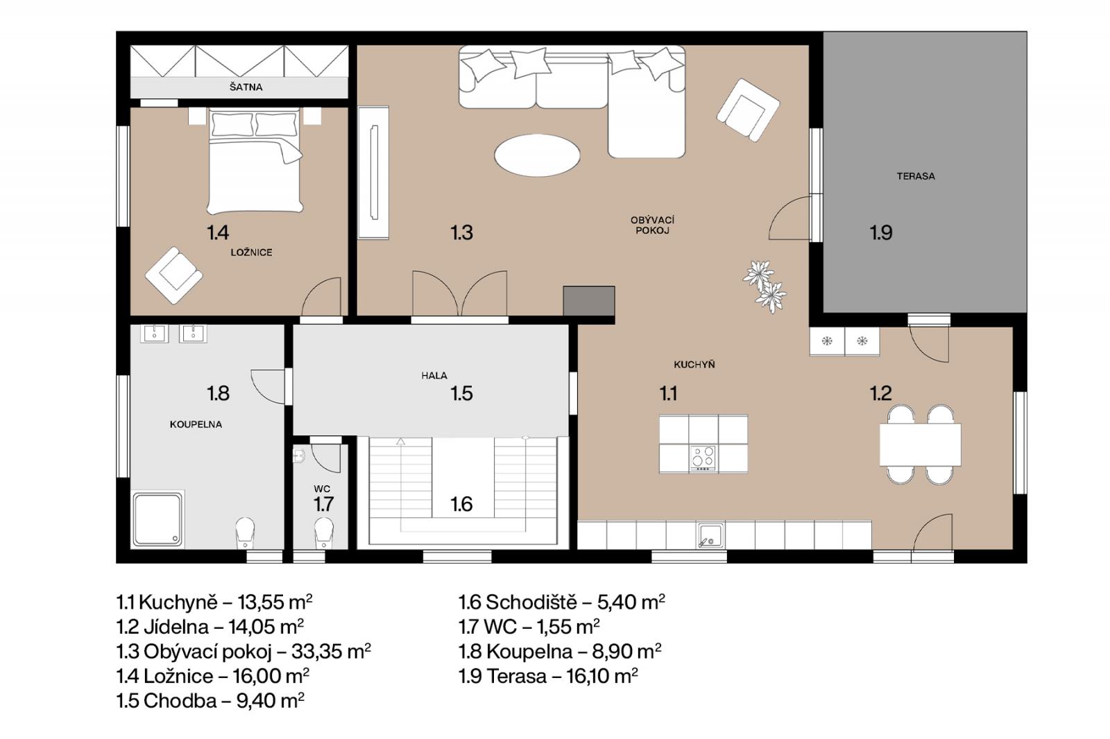
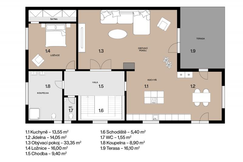
Dům je rozdělen do tří podlaží a nabízí celkem 6 obytných místností, 3 koupelny a 4 WC.
1. podlaží tvoří vstupní část domu s pracovnou se samostatným vchodem z ulice, na kterou navazuje vlastní sociální zařízení (koupelna + WC), což nabízí zajímavý potenciál pro samostatné využití; součástí tohoto podlaží je dále technické zázemí domu
2. podlaží představuje hlavní obytný prostor s obývacím pokojem, kuchyní, jídelnou, ložnicí a vstupem na terasu
3. podlaží nabízí klidovou část se třemi ložnicemi a vstupem na terasu, součástí jednoho z pokojů je i příprava na kuchyň
Exteriér a zázemí
Na obytné prostory navazuje v každém z nadzemních podlaží venkovní terasa.
Součástí domu je udržovaná zahrada a také opticky uzavřený venkovní prostor orientovaný směrem do zahrady, který nabízí příjemné soukromí, venkovní posezení a funguje jako přirozené rozšíření obytného prostoru domu. Toto zázemí dále doplňuje samostatná letní kuchyně se vstupem ze dvora, která tak ještě zvyšuje jeho využitelnost.
Parkování je řešeno přístřeškem pro dvě vozidla, na který navazuje praktické úložné zázemí pro zahradní vybavení a další potřeby.
Technické zázemí a provoz
Dům je vybaven kombinací technologií, které umožňují efektivní a flexibilní provoz:
- tepelné čerpadlo (Mitsubishi Zubadan)
- plynový kondenzační kotel
- kachlová kamna s rozvodem tepla do horního podlaží
- fotovoltaická elektrárna s bateriovým úložištěm
Díky této kombinaci je možné optimalizovat náklady na energie podle aktuální situace a zároveň využívat více nezávislých zdrojů vytápění.
Energetická náročnost: třída B
Další benefity
- kombinace podlahového vytápění a radiátorů
- elektrické venkovní žaluzie
- kamerový a zabezpečovací systém
- oběhové čerpadlo teplé vody (komfort bez čekání)
Lokalita
Náměšť nad Oslavou nabízí kompletní občanskou vybavenost a příjemné prostředí pro rodinné bydlení. Okolí města nabízí dostatek možností pro aktivní odpočinek v přírodě, zejména v oblasti údolí řeky Oslavy s množstvím turistických a cyklistických tras.
Dopravní dostupnost zajišťuje vlakové spojení směrem na Brno, Třebíč i Jihlavu. Dojezdové vzdálenosti autem činí přibližně 25 minut do Třebíče, 35-45 minut do Brna a 40-50 minut do Jihlavy.
Dům představuje zajímavou příležitost pro ty, kteří hledají prostorné a kvalitní bydlení s možností variabilního využití a důrazem na dlouhodobě udržitelné provozní náklady.
Pro více informací nebo domluvení prohlídky mě neváhejte kontaktovat. Rád Vás domem osobně provedu.
Nemovitost je ve velmi dobrém technickém stavu a díky kombinaci vícero zdrojů vytápění a energie umožňuje efektivní a dlouhodobě udržitelný provoz.
Dispozice a řešení domu
Dům je rozdělen do tří podlaží a nabízí celkem 6 obytných místností, 3 koupelny a 4 WC.
1. podlaží tvoří vstupní část domu s pracovnou se samostatným vchodem z ulice, na kterou navazuje vlastní sociální zařízení (koupelna + WC), což nabízí zajímavý potenciál pro samostatné využití; součástí tohoto podlaží je dále technické zázemí domu
2. podlaží představuje hlavní obytný prostor s obývacím pokojem, kuchyní, jídelnou, ložnicí a vstupem na terasu
3. podlaží nabízí klidovou část se třemi ložnicemi a vstupem na terasu, součástí jednoho z pokojů je i příprava na kuchyň
Exteriér a zázemí
Na obytné prostory navazuje v každém z nadzemních podlaží venkovní terasa.
Součástí domu je udržovaná zahrada a také opticky uzavřený venkovní prostor orientovaný směrem do zahrady, který nabízí příjemné soukromí, venkovní posezení a funguje jako přirozené rozšíření obytného prostoru domu. Toto zázemí dále doplňuje samostatná letní kuchyně se vstupem ze dvora, která tak ještě zvyšuje jeho využitelnost.
Parkování je řešeno přístřeškem pro dvě vozidla, na který navazuje praktické úložné zázemí pro zahradní vybavení a další potřeby.
Technické zázemí a provoz
Dům je vybaven kombinací technologií, které umožňují efektivní a flexibilní provoz:
- tepelné čerpadlo (Mitsubishi Zubadan)
- plynový kondenzační kotel
- kachlová kamna s rozvodem tepla do horního podlaží
- fotovoltaická elektrárna s bateriovým úložištěm
Díky této kombinaci je možné optimalizovat náklady na energie podle aktuální situace a zároveň využívat více nezávislých zdrojů vytápění.
Energetická náročnost: třída B
Další benefity
- kombinace podlahového vytápění a radiátorů
- elektrické venkovní žaluzie
- kamerový a zabezpečovací systém
- oběhové čerpadlo teplé vody (komfort bez čekání)
Lokalita
Náměšť nad Oslavou nabízí kompletní občanskou vybavenost a příjemné prostředí pro rodinné bydlení. Okolí města nabízí dostatek možností pro aktivní odpočinek v přírodě, zejména v oblasti údolí řeky Oslavy s množstvím turistických a cyklistických tras.
Dopravní dostupnost zajišťuje vlakové spojení směrem na Brno, Třebíč i Jihlavu. Dojezdové vzdálenosti autem činí přibližně 25 minut do Třebíče, 35-45 minut do Brna a 40-50 minut do Jihlavy.
Dům představuje zajímavou příležitost pro ty, kteří hledají prostorné a kvalitní bydlení s možností variabilního využití a důrazem na dlouhodobě udržitelné provozní náklady.
Pro více informací nebo domluvení prohlídky mě neváhejte kontaktovat. Rád Vás domem osobně provedu.
Celý text
Zkrácený text
Jakub Tancoš
Mapa okolí
| ID zakázky | D40033047 |
|---|---|
| budova | Cihlová |
| stav objektu | Velmi dobrý |
| poloha domu | Rohový |
| typ domu | Patrový |
| plocha užitná | 300 m2 |
| plocha pozemku | 776 m2 |
| terasa | Ano |
| parkovací stání | Ano |
| vybavení | Ano |
| voda | Dálkový vodovod |
| topení | Lokální plynové |
| plyn | Plynovod |
| odpad | Veřejná kanalizace |
| elektřina | 240V / 400V |
| doprava | Vlak |
| PENB | B |
Jakub Tancoš
Podobné nemovitosti v naší nabídce
Nenašli jste své vysněné bydlení?
Nastavte si novinky do e-mailu
Nechte si posílat novinky z naší nabídky a mějte stále přehled o nových
nemovitostech.
- prodáte 2x rychleji
- můžeme navýšit prodejní cenu o 10-15 %
- naši provizi platí kupující
Chci prodat nemovitost
- odhad zpracujeme vždy zdarma
- zjistíme aktuální tržní cenu v dané lokalitě
- realitní specialista vám volá obratem