Prodej rodinného domu, 76 m2
Čáslav, Čáslav-Nové Město, Nazaret
3 990 000 Kč
V srdci historické Čáslavi, v malebné uličce Nazaret, stojí dům, který vás okamžitě přenese do jiných časů. Ačkoliv jeho přesné stáří zůstává tajemstvím, masivní kamenné zdivo a unikátní klenuté sklepy dávají jasně najevo, že jde o stavbu s velmi hlubokými kořeny. Tento dům není jen nemovitost - je to příležitost pro ty, kteří chtějí bydlet v autentickém prostředí a zachovat jeho neopakovatelný genius loci.
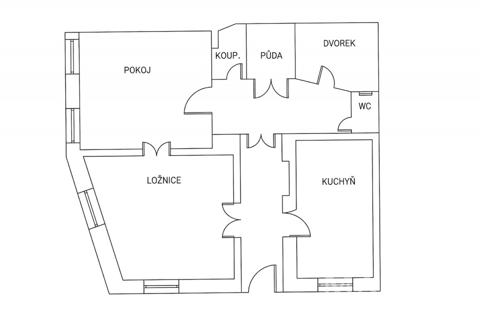
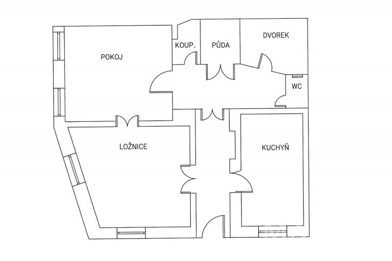
Dispozice přízemí o podlahové ploše 76 m2 nabízí vše potřebné pro komfortní život. Srdcem domu je prostorná kuchyně, na kterou navazují dva světlé pokoje - ložnice a obývací pokoj s původními dřevěnými podlahami. Praktické zázemí v podobě koupelny a samostatného WC doplňuje centrální chodba, ze které můžete vyjít přímo na dlážděný dvorek. Právě zde, v naprostém soukromí, najdete ideální prostor pro klidné posezení. Atmosféru dotváří romantická předzahrádka plná květin, která dům odděluje od klidné ulice.
Technicky dům nabízí poctivý základ pro modernizaci: plastová okna, zateplený strop nad kuchyní, zachovalé rozvody vody a napojení na obecní vodovod i spádovou kanalizaci. V domě je zavedena elektřina 380 V. Vytápění a ohřev vody zajišťuje plyn, ale díky třem komínům se přímo nabízí instalace krbových kamen.
Skutečný potenciál se však skrývá v rozlehlé půdě, která čeká na svou obytnou vestavbu, a v klenutém sklepě, který je snem každého milovníka historie či dobrého vína. Tyto prostory jsou navíc nad rámec uvedené podlahové plochy přízemí.
Proč si tuto nemovitost zamilujete:
- Historické centrum: Klidná ulice Nazaret nabízí bydlení s neopakovatelnou atmosférou v docházkové vzdálenosti od všeho podstatného.
- Soukromý dvorek a předzahrádka: Vlastní kus venkovního prostoru pro relaxaci přímo v historické zástavbě.
- Vize budoucnosti: Přiložené vizualizace ukazují, jak snadno lze skloubit historické zdivo s moderním designem a vytvořit špičkové bydlení.
- Skvělá dostupnost: Čáslav nabízí kompletní občanskou vybavenost a rychlé vlakové i autobusové spoje do Prahy a Kutné Hory.
- Exkluzivní benefit: K domu je možné přikoupit zděnou garáž na vlastním pozemku v nedaleké ulici Hluboká cesta.
Tato nemovitost představuje vzácnou rovnováhu mezi historií a potenciálem. Díky své poloze a dispozici je ideální volbou jak pro trvalé rodinné bydlení, tak jako stylový objekt pro rekreaci, který vám poslouží jako dokonalý úkryt před shonem velkoměsta. Přijďte se nadechnout historie a objevit kouzlo, které dům v ulici Nazaret nabízí.
Dispozice přízemí o podlahové ploše 76 m2 nabízí vše potřebné pro komfortní život. Srdcem domu je prostorná kuchyně, na kterou navazují dva světlé pokoje - ložnice a obývací pokoj s původními dřevěnými podlahami. Praktické zázemí v podobě koupelny a samostatného WC doplňuje centrální chodba, ze které můžete vyjít přímo na dlážděný dvorek. Právě zde, v naprostém soukromí, najdete ideální prostor pro klidné posezení. Atmosféru dotváří romantická předzahrádka plná květin, která dům odděluje od klidné ulice.
Technicky dům nabízí poctivý základ pro modernizaci: plastová okna, zateplený strop nad kuchyní, zachovalé rozvody vody a napojení na obecní vodovod i spádovou kanalizaci. V domě je zavedena elektřina 380 V. Vytápění a ohřev vody zajišťuje plyn, ale díky třem komínům se přímo nabízí instalace krbových kamen.
Skutečný potenciál se však skrývá v rozlehlé půdě, která čeká na svou obytnou vestavbu, a v klenutém sklepě, který je snem každého milovníka historie či dobrého vína. Tyto prostory jsou navíc nad rámec uvedené podlahové plochy přízemí.
Proč si tuto nemovitost zamilujete:
- Historické centrum: Klidná ulice Nazaret nabízí bydlení s neopakovatelnou atmosférou v docházkové vzdálenosti od všeho podstatného.
- Soukromý dvorek a předzahrádka: Vlastní kus venkovního prostoru pro relaxaci přímo v historické zástavbě.
- Vize budoucnosti: Přiložené vizualizace ukazují, jak snadno lze skloubit historické zdivo s moderním designem a vytvořit špičkové bydlení.
- Skvělá dostupnost: Čáslav nabízí kompletní občanskou vybavenost a rychlé vlakové i autobusové spoje do Prahy a Kutné Hory.
- Exkluzivní benefit: K domu je možné přikoupit zděnou garáž na vlastním pozemku v nedaleké ulici Hluboká cesta.
Tato nemovitost představuje vzácnou rovnováhu mezi historií a potenciálem. Díky své poloze a dispozici je ideální volbou jak pro trvalé rodinné bydlení, tak jako stylový objekt pro rekreaci, který vám poslouží jako dokonalý úkryt před shonem velkoměsta. Přijďte se nadechnout historie a objevit kouzlo, které dům v ulici Nazaret nabízí.
Celý text
Zkrácený text
Mapa okolí
| ID zakázky | D40033140 |
|---|---|
| budova | Smíšená |
| stav objektu | Dobrý |
| poloha domu | Rohový |
| typ domu | Přízemní |
| plocha užitná | 76 m2 |
| plocha pozemku | 182 m2 |
| vybavení | Ano |
| voda | Dálkový vodovod |
| topení | Lokální plynové |
| plyn | Plynovod |
| odpad | Veřejná kanalizace |
| elektřina | 240V / 400V |
| PENB | G |
Mgr. Michaela Zahradníková
realitní specialista
Podobné nemovitosti v naší nabídce
Nenašli jste své vysněné bydlení?
Nastavte si novinky do e-mailu
Nechte si posílat novinky z naší nabídky a mějte stále přehled o nových
nemovitostech.
- prodáte 2x rychleji
- můžeme navýšit prodejní cenu o 10-15 %
- naši provizi platí kupující
Chci prodat nemovitost
- odhad zpracujeme vždy zdarma
- zjistíme aktuální tržní cenu v dané lokalitě
- realitní specialista vám volá obratem