Prodej bytu 4 + kk, 179 m2
Praha 10, Pitkovice, Pečárková
15 460 000 Kč
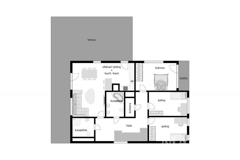
Lukrativní cena: v ceně garáž, sklep a další parkovací místo. Cenově zajímavá nabídka v porovnání s byty stejné velikosti v této pražské čtvrti. Exkluzivní nabídka jedinečné nemovitosti: prostorný byt 4+kk (celková plocha 179 m2) s pohledově chráněnou rozlehlou terasou, se značným odstupem od okolní zástavby, s otevřeným výhledem, lodžií, garáží a dalším parkovacím místem. Komfortní bydlení v metropoli s parametry bydlení v rodinném domě. Základní dispozice 4+kk/T/L, dále 2 koupelny, komora, technická místnost, hala s knihovnou, vstupní hala se šatnou. V suterénu velký sklep a garážové místo. Jednotka s celkovou plochou 179 m2: 113,3 m2 (čistá vnitřní plocha bytu bez nosných zdí a příček), 62,5 m2 (terasa), 2,8 m2 (lodžie), je situována ve 3. a 4. NP komorního bytového domu. Byt je uspořádán mezonetově tak, že vstupní podlaží reprezentuje pouze vstupní hala se šatnou a komorou, oddělená bezpečnostními dveřmi od společných prostor komorního bytového domu. V horním podlaží mezonetu se rozkládá v naprostém soukromí obytná zóna bytu s terasou a lodžií. Hala s knihovnou umožňuje vstup do společenské zóny, kterou tvoří obývací pokoj (30,8 m2) s jídelnou a kuchyní, provázaný francouzskými okny s terasou (62,4 m2) i vstup do intimní zóny, kterou tvoří pokoj (14 m2) s východně orientovanou lodžií (2,8 m2) a další 2 pokoje (10,9 m2 a 11,1 m2). Dispozici tohoto podlaží doplňují 2 koupelny, 2 WC a komora/technická místnost s pračkou atd. Příslušenství jednotky tvoří sklep (3,7 m2) v 1.PP. Pohodlné parkování 2 aut garantuje garážové místo a venkovní parkovací místo. Bydlení s mimořádným soukromím v obytné čtvrti s parkovou úpravou, vybaveností v místě (MŠ, restaurace, nyní se realizuje polyfunkční dům), další vybavenost v sousední Uhříněvsi, Čestlicích a Průhonicích, rychlá dostupnost centra metropole, současně v sousedství přírody. Nemovitost je nabízena výhradně naší kanceláří.
Hypotéka lze, zařídíme nejoptimálnější profinancování. Při realizaci bytového domu
byl vyhotoven PENB C.
Hypotéka lze, zařídíme nejoptimálnější profinancování. Při realizaci bytového domu
byl vyhotoven PENB C.
Celý text
Zkrácený text
Mapa okolí
| ID zakázky | B50088574 |
|---|---|
| budova | Cihlová |
| stav objektu | Velmi dobrý |
| vlastnictví | Osobní |
| podlaží | 3./4. |
| lodžie | Ano |
| terasa | Ano |
| parkovací stání | Ano |
| garáž | Ano |
| PENB | G |
Ing. arch. Monika Christová
realitní specialista
Podobné nemovitosti v naší nabídce
Nenašli jste své vysněné bydlení?
Nastavte si novinky do e-mailu
Nechte si posílat novinky z naší nabídky a mějte stále přehled o nových
nemovitostech.
- prodáte 2x rychleji
- můžeme navýšit prodejní cenu o 10-15 %
- naši provizi platí kupující
Chci prodat nemovitost
- odhad zpracujeme vždy zdarma
- zjistíme aktuální tržní cenu v dané lokalitě
- realitní specialista vám volá obratem