Prodej bytu 2 + kk, 114 m2
Praha 2, Nusle, Slavojova
11 490 000 Kč
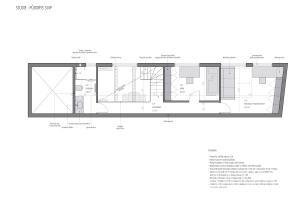
Nabízíme k prodeji unikátní nemovitost v pražských Nuslích, která představuje dokonalou harmonii mezi historickým geniem loci a špičkovým moderním standardem. Kromě bytové jednotky je součástí prodeje i nebytový prostor - celkem tedy 114 m2.
Byt o dispozici 2+kk a ploše 55,5 m2 prošel v roce 2024 precizní kompletní rekonstrukcí (vč. Elektroinstalace) , která do interiéru vnesla svěží a moderní vibe. Srdcem bytu je obývací prostor s přiznanými původními trámy, na který navazuje kuchyň s novou linkou a vestavěnými spotřebiči včetně indukce. Kuchyň je od hlavního prostoru oddělena stylovými designovými prosklenými dveřmi, které zajišťují volné proudění světla a podtrhují vzdušnost celého interiéru.
Všechna okna bytu jsou orientována na jihovýchod, což v kombinaci s výhledem do klidného vnitrobloku plného zeleně zaručuje prosluněný a tichý domov. O tepelný komfort se v létě i v zimě starají dvě výkonné klimatizační jednotky, zatímco ohřev vody zajišťuje vlastní elektrický bojler. Spotřeba energie je chytře optimalizována díky plnému využití časů nízkého tarifu, což spolu s moderními technologiemi zajišťuje velmi nízké provozní náklady. Estetickou stránku doplňují kvalitní vinylové podlahy a dlažba.
K bytu náleží také pavlač o výměře 18 m2, která je přístupná a využívaná výhradně majitelem tohoto bytu, což nabízí vzácné soukromí pro venkovní relaxaci. Navíc mají obyvatelé přístup i do společné zahrady ve vnitrobloku.
Zásadní přidanou hodnotu této nabídky však představuje přilehlý nebytový prostor v podkroví o rozloze 58,9 m2. K tomuto prostoru již existuje vypracovaná studie na vybudování dalších dvou pokojů s vlastní koupelnou a toaletou (elektřina a rozvody již připravené), což umožňuje budoucí rozšíření na velkorysé rodinné mezonetové bydlení.
Lokalita domu v těsném sousedství Vyšehradských sadů nabízí ideální únik do přírody a historie, přičemž dopravní spojení je díky zastávce tramvají Ostrčilovo náměstí v bezprostřední blízkosti naprosto bezchybné. Dům spravuje malé, dobře fungující SVJ , což přispívá k rodinné atmosféře bydlení v památkově chráněné zóně.
Tato nemovitost je tak ideální volbou pro ty, kteří hledají hotové designové bydlení s možností budoucího rozšíření v jedné z nejatraktivnějších částí Prahy.
PENB: G
Byt o dispozici 2+kk a ploše 55,5 m2 prošel v roce 2024 precizní kompletní rekonstrukcí (vč. Elektroinstalace) , která do interiéru vnesla svěží a moderní vibe. Srdcem bytu je obývací prostor s přiznanými původními trámy, na který navazuje kuchyň s novou linkou a vestavěnými spotřebiči včetně indukce. Kuchyň je od hlavního prostoru oddělena stylovými designovými prosklenými dveřmi, které zajišťují volné proudění světla a podtrhují vzdušnost celého interiéru.
Všechna okna bytu jsou orientována na jihovýchod, což v kombinaci s výhledem do klidného vnitrobloku plného zeleně zaručuje prosluněný a tichý domov. O tepelný komfort se v létě i v zimě starají dvě výkonné klimatizační jednotky, zatímco ohřev vody zajišťuje vlastní elektrický bojler. Spotřeba energie je chytře optimalizována díky plnému využití časů nízkého tarifu, což spolu s moderními technologiemi zajišťuje velmi nízké provozní náklady. Estetickou stránku doplňují kvalitní vinylové podlahy a dlažba.
K bytu náleží také pavlač o výměře 18 m2, která je přístupná a využívaná výhradně majitelem tohoto bytu, což nabízí vzácné soukromí pro venkovní relaxaci. Navíc mají obyvatelé přístup i do společné zahrady ve vnitrobloku.
Zásadní přidanou hodnotu této nabídky však představuje přilehlý nebytový prostor v podkroví o rozloze 58,9 m2. K tomuto prostoru již existuje vypracovaná studie na vybudování dalších dvou pokojů s vlastní koupelnou a toaletou (elektřina a rozvody již připravené), což umožňuje budoucí rozšíření na velkorysé rodinné mezonetové bydlení.
Lokalita domu v těsném sousedství Vyšehradských sadů nabízí ideální únik do přírody a historie, přičemž dopravní spojení je díky zastávce tramvají Ostrčilovo náměstí v bezprostřední blízkosti naprosto bezchybné. Dům spravuje malé, dobře fungující SVJ , což přispívá k rodinné atmosféře bydlení v památkově chráněné zóně.
Tato nemovitost je tak ideální volbou pro ty, kteří hledají hotové designové bydlení s možností budoucího rozšíření v jedné z nejatraktivnějších částí Prahy.
PENB: G
Celý text
Zkrácený text
Mapa okolí
| ID zakázky | B50086172 |
|---|---|
| budova | Cihlová |
| stav objektu | Po rekonstrukci |
| vlastnictví | Osobní |
| plocha podlahová | 114 m2 |
| PENB | G |
Mgr. Michaela Zahradníková
realitní specialista
Podobné nemovitosti v naší nabídce
Nenašli jste své vysněné bydlení?
Nastavte si novinky do e-mailu
Nechte si posílat novinky z naší nabídky a mějte stále přehled o nových
nemovitostech.
- prodáte 2x rychleji
- můžeme navýšit prodejní cenu o 10-15 %
- naši provizi platí kupující
Chci prodat nemovitost
- odhad zpracujeme vždy zdarma
- zjistíme aktuální tržní cenu v dané lokalitě
- realitní specialista vám volá obratem